お部屋探しが初めての人は、経験がないだけに何をどうしたらいいのか迷いますよね。気に入る物件に出合うまでには、たくさんの手順やチェックが必要です。 いろんな情報を集めるだけでなく、不動産会社を訪問したり契約書を交わしたりといった、ちょっぴり緊張しそうなことも。 そこで、お部屋探しの際のポイントを整理して、便利なチェックシートも作りました。このマニュアルとチェックシートを活用しながら、行動開始です!-STEP4- 建物構造・間取りについて建物構造について知るアパートとマンションの違いは?軽量鉄骨造と鉄筋コンクリート造の違いは?また、その特徴は?木造にも長所はあるの?そんななんとなく知っているつもりで知らなかった疑問を一気に解消!建物構造も物件を決める際の重要なポイントなります。アパートとマンションの違い3階建てのマンションと2階建てのアパートを比べた時、構造は同じで、ただ2階建てと3階建ての違いしかなかったということがあります。これは3階建て以上が「マンション」、2階建て以下が「アパート」という区別の仕方をする場合があるためです。また、設備が充実していて管理費が高いのが「マンション」という見方もありますが、最近ではデザイナーズアパートのような高級感あふれるアパートもあるので、一概にそうは言えなくなってきているようです。このように明確な規定がないため、アパートかマンションかで物件を決めるのはあまり意味がないのかもしれません。「木造か鉄骨か」というような実質的な違いに目を向けるのが良さそうです。木造の特徴木造とは、文字通り木質材料で構成される建物構造のこと。木造住宅は閉め切った状態でも適度な通気性を得ることができる優れた建物です。しかし、「遮音性」が鉄筋コンクリート造の物件などに比べ劣っているのも現状。特に、重量衝撃音と言われるドンドン飛び跳ねたり、人が歩いたりする音は下階の部屋によく聞こえてしまいます。ただし、天井材・床材などに吸音材を使用することである程度は解消されるので、床や壁の構造がどうなっているのかを不動産会社に聞いてみるといいでしょう。しかし、木造ということで家賃が下がるのも事実。構造以外が同じ条件でも、数千円違う場合がありますので、自分の価値観をもとに冷静に判断しましょう。軽量鉄骨造の特徴軽量鉄骨造は、木造の部材を鉄骨にしたもので、木造によく似ています。骨組みに厚さ6�以下の鉄骨を、外壁や内壁に軽量コンクリートを使っており、木造に比べ耐震性があります。最近では、アパートでも木造ではなく軽量鉄骨造の物件が多いようです。鉄筋コンクリート造の特徴鉄筋コンクリート造(RC)とはコンクリートを鉄筋で補強した構造のことで、鉄筋が引張り力が強く、コンクリートが圧縮力に強いという両者の利点を生かした仕組みになっています。木造に比べ、耐久・耐震・耐火・防音などの性能が優れているとされています。● 近隣で火災が起きても火が燃え移りにくい● 大通りに面した場所でも騒音が聞こえにくいといった利点があるため、都市部の密集地域には最適な構造です。しかし、建築にコストがかかるため、鉄筋コンクリート造のマンションとなると賃料が上がるのも確かです。建物構造で物件を選ぶ木造、軽量鉄骨、鉄筋コンクリートと最近の賃貸住宅に多い構造を説明しましたが、アパートにしろ、マンションにしろ、構造がしっかりすれば、その分家賃が高くなるというのが一般的なようです。マンションだから、アパートだからと決めつけず、実際に自分の目で見てから判断するのが、賢い物件の選び方と言えそうです。間取りについて知るまず、ひとり暮らしをするなら、選択することの多いワンルーム。他に1Kや1DKという間取りもあって、どう違うのか分からないなんて声も聞きます。そんな間取りの事をこちらでは説明したいと思います。1R・1K・1DKって、何が違うの?1R(ワンルーム)1K(ワンケー)1DK(ワンディーケー)1LDK(ワンエルディーケー)キッチンと居室が仕切られず一体化している間取り。そのためキッチンは、安全を考慮して電気コンロやIHコンロを採用している場合が多い。ワンルーム・1K・1DKが同じ専有面積だとすると、キッチンとの仕切がない分ワンルームの居室スペースが広くなる。1Kや1DKと比べて家賃が低く設定されている物件が多い。キッチンスペースが4.5帖までの部屋をKと表記している。キッチンと部屋の間に仕切り戸があれば1Kと表記される。キッチンと部屋の仕切りを取ると、キッチンが独立しているように見えてもワンルームになる。キッチンだけでなく、バス・トイレ・洗面といった水を扱うスペースが居室と仕切られている物件がほとんど。キッチンが4.5帖〜8帖のスペースが確保されている間取りで、DKはダイニングキッチンの略。8帖以上になるとLDKになる。1Kと同じくキッチンと居室は仕切り戸によって分けられている。1Kよりキッチンスペースが広がったことによって、食事をする部屋と寝室を分けて生活することもできる。ダイニングキッチンが8帖以上のスペースが確保されている間取りで、LDKはリビングダイニングキッチンの略。1DKよりダイニングスペースが広がり、リビングスペースとして使えるキッチン部屋となる。 このようにワンルーム・1K・1DK・1LDKの違いは単にキッチンと居室の構造の違いによって分けられます。単にキッチンスペースの広さだけの表記なので、居室の広さやグレードはまったく関係ありません。ワンルームでもデザイナーズの新築で設備も整い、専有面積が30平米を超える物件もあります。部屋を探す上でのチェックポイント部屋を探すときに、現地見学をする前にまず目にするのが間取り図。この間取り図を見るだけで、ある程度のことは分かります。そのチェックポイントを見てみましょう。ワンルームまずは玄関【1】を見ると、何も収納スペースがありません。靴をたくさん持っているのなら、下駄箱が欲しいところですね。実際、間取り図には書いていなくても、現地で見ると小さな下駄箱があることもありますので、要チェックです。 また、これは浴室とトイレ【2】が別々のタイプであることが分かります。ただし、トイレは、洗面台(脱衣所)内にあることが分かります。他に、浴室は廊下のドアを開けるとすぐに「浴室」となっていたり、洗面台がない場合もあります。これも現地でしっかり確認したいところです。また、この間取り図の設備欄に「シャワー」とある場合も、浴槽がありお湯を張ることができるのか、ガスで追い炊きすることができるのかの確認も必要です。扉の開き方も見ておくとよいでしょう。 キッチン【3】がは、右側がシンク、左側にコンロを置くことができる図になっています。ただ、コンロはガスなのか電気なのかも確認しておきましょう。 「洋室9帖」【4】と書いてある場合には、それがフローリングなのかカーペットなのか分かりません。間取り図と一緒に書いてある設備・仕様の項目にも何も記載がなければ、確認をしましょう。また、「洋室9帖」とあっても、自分が思っている広さでないこともあります。それは、地域による格差があるからなのですが、平米数をチェックしたり、実際に部屋を見て確認しましょう。 さらにもうひとつ。こちらのお部屋にはついていない、重要な設備があります。収納です。部屋の中にあるのか、どの程度あるのかも気になるところですが、戸のマークも要チェック項目です。クローゼットだと、開き戸も多く、引き違い戸は押入れで使われがちです。また、間取り図では、収納の有無は分かりますが、正確な大きさはわかりません。 あと気になるのが洗濯機置き場。洗面所(脱衣所)に防水パンのマークがあり、室内に洗濯機置き場があることが分かります。もし、ない場合は、バルコニーに置くのか、また玄関の外に置くのか、室内におけるところがあるのかを確認しましょう。1Kこれは、1Kタイプの間取り図。まず、玄関【1】を入ったところに靴を入れる事のできる収納がありそうです、どの程度の大きさかはわかりませんが、あるとないとでは玄関の雰囲気も変わってきます。 また、洗面所らしきものは見当たりません。洗濯機置き場【2】のマークがあるので、洗濯機は室内に置けそうです。 キッチンには冷蔵庫置き場が書かれていない様なので、置くスペースが本当に確保できるかを現地へ行って確認する事をおすすめします。 洋室には「クローゼット」【3】があります。大きさは1間くらいだと分かりますが、ハンガーをかけるパイプが通っているのか、また2段になっているのか、などの状態は現地で確認をしましょう。クローゼットは「CL」と略されることもあります。戸は、折りたたみ戸になっており、W字に開閉するタイプであると分かります。 他は、この間取り図の部屋には脱衣所がありません。キッチンからすぐ戸を開くとお風呂という形になっています。洗面台がないというのは、あまり女性の方には敬遠されがちタイプでもあります。1DKと1LDK1DKは、DKと洋室が引き戸でつながっていて、友人が来たときは広げて使う、気を使う相手なら閉めたままにするなど、使い分けできるのがメリット。ただし、DKは通路になる部分が多いので、ダイニングセットの位置には注意が必要。また、洋室は南東向きで明るいですが、閉めてしまうと、DKは暗くなるので、できるだけ開けて光、風を入れるようにしましょう。 それに比べて、1LDKは、洋室がLDKから完全に独立した間取り。洋室を寝室兼収納にしてしまえば、LDKはすっきり使えます。また、友人が来たときにプライベートな部分を見せずに済みます。出窓は外から見えないかチェックを。丸見えのキッチンは、間に収納を兼ねたカウンター家具を置いて目隠しにすると、収納力アップもはかれて一挙両得です。間取り図では分からないことも間取り図は所詮平面図。ですから、注意しなければいけないのは縦のサイズです。例えば、窓は掃き出し窓(床面から窓があるもの)なのか、腰高窓(人の腰の高さから窓があるもの)なのか、また天井高はどのくらいか、玄関の上がり口の高さや廊下からキッチンへはバリアフリーになっているのか、などの情報は間取り図では分かりません。 さらに、分譲タイプの賃貸間取り図なら、コンセントの位置や照明器具の取り付け位置、電話アウトレットなど詳細まで記載されていることもありますが、賃貸ではまずありません。 間取り図は、あくまでもイメージを掴むために利用するもの。現地での確認は必須です。「図面と現況が異なる場合は現況を優先とします」というコメントが広告物には、ほぼ間違いなく入っているからです。間取り図を眺めながら、「ここにソファを置こう」「テレビを置く場所は・・・?」などと想像するのは、とても楽しいですが、実際に契約するなら、必ず現地チェックを行い、間取り図では分からなかった縦の要素を確認しましょう。
お部屋探しが初めての人は、経験がないだけに何をどうしたらいいのか迷いますよね。気に入る物件に出合うまでには、たくさんの手順やチェックが必要です。 いろんな情報を集めるだけでなく、不動産会社を訪問したり契約書を交わしたりといった、ちょっぴり緊張しそうなことも。 そこで、お部屋探しの際のポイントを整理して、便利なチェックシートも作りました。このマニュアルとチェックシートを活用しながら、行動開始です!
-STEP4- 建物構造・間取りについて
建物構造について知る
アパートとマンションの違いは?軽量鉄骨造と鉄筋コンクリート造の違いは?また、その特徴は?木造にも長所はあるの?そんななんとなく知っているつもりで知らなかった疑問を一気に解消!建物構造も物件を決める際の重要なポイントなります。
アパートとマンションの違い
3階建てのマンションと2階建てのアパートを比べた時、構造は同じで、ただ2階建てと3階建ての違いしかなかったということがあります。これは3階建て以上が「マンション」、2階建て以下が「アパート」という区別の仕方をする場合があるためです。また、設備が充実していて管理費が高いのが「マンション」という見方もありますが、最近ではデザイナーズアパートのような高級感あふれるアパートもあるので、一概にそうは言えなくなってきているようです。このように明確な規定がないため、アパートかマンションかで物件を決めるのはあまり意味がないのかもしれません。「木造か鉄骨か」というような実質的な違いに目を向けるのが良さそうです。
木造の特徴
木造とは、文字通り木質材料で構成される建物構造のこと。木造住宅は閉め切った状態でも適度な通気性を得ることができる優れた建物です。しかし、「遮音性」が鉄筋コンクリート造の物件などに比べ劣っているのも現状。特に、重量衝撃音と言われるドンドン飛び跳ねたり、人が歩いたりする音は下階の部屋によく聞こえてしまいます。ただし、天井材・床材などに吸音材を使用することである程度は解消されるので、床や壁の構造がどうなっているのかを不動産会社に聞いてみるといいでしょう。しかし、木造ということで家賃が下がるのも事実。構造以外が同じ条件でも、数千円違う場合がありますので、自分の価値観をもとに冷静に判断しましょう。
軽量鉄骨造の特徴
軽量鉄骨造は、木造の部材を鉄骨にしたもので、木造によく似ています。骨組みに厚さ6�以下の鉄骨を、外壁や内壁に軽量コンクリートを使っており、木造に比べ耐震性があります。最近では、アパートでも木造ではなく軽量鉄骨造の物件が多いようです。
鉄筋コンクリート造の特徴
鉄筋コンクリート造(RC)とはコンクリートを鉄筋で補強した構造のことで、鉄筋が引張り力が強く、コンクリートが圧縮力に強いという両者の利点を生かした仕組みになっています。木造に比べ、耐久・耐震・耐火・防音などの性能が優れているとされています。
● 近隣で火災が起きても火が燃え移りにくい
● 大通りに面した場所でも騒音が聞こえにくい
といった利点があるため、都市部の密集地域には最適な構造です。しかし、建築にコストがかかるため、鉄筋コンクリート造のマンションとなると賃料が上がるのも確かです。
建物構造で物件を選ぶ
木造、軽量鉄骨、鉄筋コンクリートと最近の賃貸住宅に多い構造を説明しましたが、アパートにしろ、マンションにしろ、構造がしっかりすれば、その分家賃が高くなるというのが一般的なようです。マンションだから、アパートだからと決めつけず、実際に自分の目で見てから判断するのが、賢い物件の選び方と言えそうです。
間取りについて知る
まず、ひとり暮らしをするなら、選択することの多いワンルーム。他に1Kや1DKという間取りもあって、どう違うのか分からないなんて声も聞きます。そんな間取りの事をこちらでは説明したいと思います。
1R・1K・1DKって、何が違うの?
このようにワンルーム・1K・1DK・1LDKの違いは単にキッチンと居室の構造の違いによって分けられます。単にキッチンスペースの広さだけの表記なので、居室の広さやグレードはまったく関係ありません。ワンルームでもデザイナーズの新築で設備も整い、専有面積が30平米を超える物件もあります。
部屋を探す上でのチェックポイント
部屋を探すときに、現地見学をする前にまず目にするのが間取り図。この間取り図を見るだけで、ある程度のことは分かります。そのチェックポイントを見てみましょう。
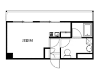
ワンルーム
まずは玄関【1】を見ると、何も収納スペースがありません。靴をたくさん持っているのなら、下駄箱が欲しいところですね。実際、間取り図には書いていなくても、現地で見ると小さな下駄箱があることもありますので、要チェックです。
また、これは浴室とトイレ【2】が別々のタイプであることが分かります。ただし、トイレは、洗面台(脱衣所)内にあることが分かります。他に、浴室は廊下のドアを開けるとすぐに「浴室」となっていたり、洗面台がない場合もあります。これも現地でしっかり確認したいところです。また、この間取り図の設備欄に「シャワー」とある場合も、浴槽がありお湯を張ることができるのか、ガスで追い炊きすることができるのかの確認も必要です。扉の開き方も見ておくとよいでしょう。
キッチン【3】がは、右側がシンク、左側にコンロを置くことができる図になっています。ただ、コンロはガスなのか電気なのかも確認しておきましょう。
「洋室9帖」【4】と書いてある場合には、それがフローリングなのかカーペットなのか分かりません。間取り図と一緒に書いてある設備・仕様の項目にも何も記載がなければ、確認をしましょう。また、「洋室9帖」とあっても、自分が思っている広さでないこともあります。それは、地域による格差があるからなのですが、平米数をチェックしたり、実際に部屋を見て確認しましょう。
さらにもうひとつ。こちらのお部屋にはついていない、重要な設備があります。収納です。部屋の中にあるのか、どの程度あるのかも気になるところですが、戸のマークも要チェック項目です。クローゼットだと、開き戸も多く、引き違い戸は押入れで使われがちです。また、間取り図では、収納の有無は分かりますが、正確な大きさはわかりません。
あと気になるのが洗濯機置き場。洗面所(脱衣所)に防水パンのマークがあり、室内に洗濯機置き場があることが分かります。もし、ない場合は、バルコニーに置くのか、また玄関の外に置くのか、室内におけるところがあるのかを確認しましょう。
1K
これは、1Kタイプの間取り図。まず、玄関【1】を入ったところに靴を入れる事のできる収納がありそうです、どの程度の大きさかはわかりませんが、あるとないとでは玄関の雰囲気も変わってきます。
また、洗面所らしきものは見当たりません。洗濯機置き場【2】のマークがあるので、洗濯機は室内に置けそうです。
キッチンには冷蔵庫置き場が書かれていない様なので、置くスペースが本当に確保できるかを現地へ行って確認する事をおすすめします。
洋室には「クローゼット」【3】があります。大きさは1間くらいだと分かりますが、ハンガーをかけるパイプが通っているのか、また2段になっているのか、などの状態は現地で確認をしましょう。クローゼットは「CL」と略されることもあります。戸は、折りたたみ戸になっており、W字に開閉するタイプであると分かります。
他は、この間取り図の部屋には脱衣所がありません。キッチンからすぐ戸を開くとお風呂という形になっています。洗面台がないというのは、あまり女性の方には敬遠されがちタイプでもあります。
1DKと1LDK
1DKは、DKと洋室が引き戸でつながっていて、友人が来たときは広げて使う、気を使う相手なら閉めたままにするなど、使い分けできるのがメリット。ただし、DKは通路になる部分が多いので、ダイニングセットの位置には注意が必要。また、洋室は南東向きで明るいですが、閉めてしまうと、DKは暗くなるので、できるだけ開けて光、風を入れるようにしましょう。
それに比べて、1LDKは、洋室がLDKから完全に独立した間取り。洋室を寝室兼収納にしてしまえば、LDKはすっきり使えます。また、友人が来たときにプライベートな部分を見せずに済みます。出窓は外から見えないかチェックを。丸見えのキッチンは、間に収納を兼ねたカウンター家具を置いて目隠しにすると、収納力アップもはかれて一挙両得です。
間取り図では分からないことも
間取り図は所詮平面図。ですから、注意しなければいけないのは縦のサイズです。例えば、窓は掃き出し窓(床面から窓があるもの)なのか、腰高窓(人の腰の高さから窓があるもの)なのか、また天井高はどのくらいか、玄関の上がり口の高さや廊下からキッチンへはバリアフリーになっているのか、などの情報は間取り図では分かりません。
さらに、分譲タイプの賃貸間取り図なら、コンセントの位置や照明器具の取り付け位置、電話アウトレットなど詳細まで記載されていることもありますが、賃貸ではまずありません。
間取り図は、あくまでもイメージを掴むために利用するもの。現地での確認は必須です。「図面と現況が異なる場合は現況を優先とします」というコメントが広告物には、ほぼ間違いなく入っているからです。間取り図を眺めながら、「ここにソファを置こう」「テレビを置く場所は・・・?」などと想像するのは、とても楽しいですが、実際に契約するなら、必ず現地チェックを行い、間取り図では分からなかった縦の要素を確認しましょう。